直流串电与直流接地故障判断与简单查找方法知识
2022-04-28 21:09:33
登录入口电气
直流串电与直流接地故障判断与简单查找方法知识
1.直流串电查找
看下图用临时线短接负电源,万用表串联正

用临时线短接正电源,万用表串联正电源,拉开空开。万用表直流测量负电流并记录下

正常运行不串电正负电流是平衡一样的
当电流出现不平衡时候证明串电了按照图3接入万用表。尝试拉开其他空开
当拉开某开关万用表电压显示消失。确定这开关串电。查看2次图纸去检查串电点

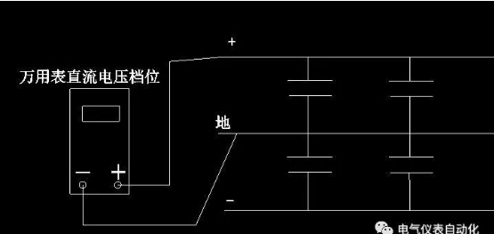
2.直流接地排查查找讲解如下图

正常运行正负电源都不直接接地,可以看做是通过电容接地。如直流电源是110V,正负接地电容容平衡的情况下正对地55V 负对地也是55V。
由于变电站2次走线布局直接影响正负对地电容不平衡。所以无法做到正对地55V。但误差不超过11V。如果110V直流电源,正负对地电压超过11V证明出现了绝缘不好直流通过电阻接地。
尝试一个个的拉开负荷直流空开,直到拉开某开关电压回到正常值,证明这开关回路绝缘不好接地。
所以在某些变电站业主提出来正负对地电压不一样。跟业主解释电容的关系就行。
查2次图拆线法排查,最好用500V摇表扯线测绝缘。
TAG:
直流接地故障